トップ【34坪】土間と木箱の家

CASE STUDY

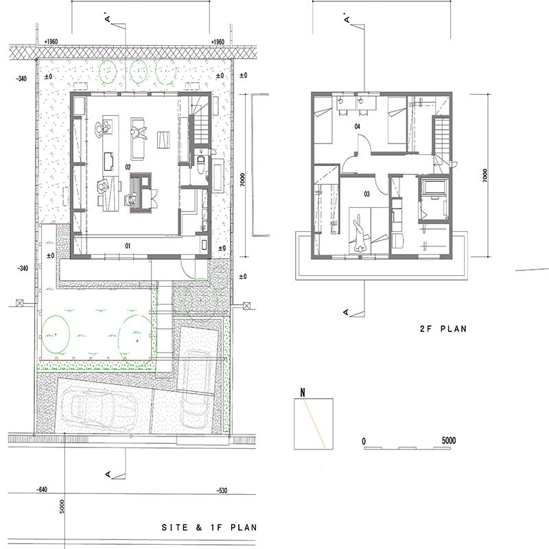
【34坪】土間と木箱の家

  • 【34坪】土間と木箱の家
  • 【34坪】土間と木箱の家
  • 【34坪】土間と木箱の家
  • 【34坪】土間と木箱の家
  • 【34坪】土間と木箱の家
  • 【34坪】土間と木箱の家
  • 【34坪】土間と木箱の家
  • 【34坪】土間と木箱の家
物件
エリア
物件エリア
物件
タイプ
物件タイプ
敷地
面積
敷地面積
延床
面積
延床面積
設計のこだわり

無料会員登録で
全ての情報が閲覧できます

HOUSE MAKER

無料会員登録で全ての情報が閲覧でき、
ハウスメーカーに連絡できます。

無料会員登録
メグリエに無料会員登録で利用できるサービス
会員建築事例・施工事例検索(物件タイプ、フリーワード、エリア、ハウスメーカー)、
優秀な営業担当者の紹介依頼、営業担当者とWeb商談、まかろにおに相談、会員限定の建築実例PVの閲覧 etc.